優秀設計師

一、地面工程
1
地面水泥砂漿找平施工工藝
節點大樣:

施工工序:
基層清理→彈線→貼灰餅→刷素水泥漿→水泥砂漿找平→養護
重點說明:
1、配制水泥砂漿應用硅酸水泥、普通硅酸鹽水泥,其標號不小于32.5MPa。嚴禁混用不同品種、不同標號的水泥,采用中砂攪拌;找平層砂漿的體積配合比為1:3,強度等級不應小于M15。
2、根據±0.000m標高扣減飾面構造厚度來確定地面找平標高(設計有要求的按設計要求確定),并在四周墻腳彈線;水泥砂漿找平層的厚度不應小于20mm。
3、同一房間的找平層應一次性施工完成,不得留置施工縫和接槎接頭。
施工圖片:

2
地面石材鋪貼施工工藝
節點大樣:

施工工序:
地面清理→試拼→水泥漿結合層→鋪貼石材 →養護→晶面處理
重點說明:
1、石材排版圖深化前須核對現場尺寸,廠家與項目部共同完成圖紙深化,經項目部核對無誤后下單生產。
2、廠家應預先對石材毛板的顏色、紋理等進行挑選,按照排版圖的順序和尺寸進行加工,根據顏色、紋理一致的原則,對石材進行試拼、調整和編號(編號與排版圖一致)。
3、石材須做六面防護,石材六面防護須縱、橫各一遍,待第一遍防護干后再刷第二遍防護,干后進行下道工序。
4、石材在鋪貼前應進行試拼,出現顏色或紋理錯亂時應進行挑選,必要時要求廠家更換。
5、深色石材采用32.5MPa普通硅酸鹽水泥混合中砂或粗砂,(含泥量不大于 3%)1:3配比;淺色系列石材采用32.5MPa白水泥砂漿摻白石屑1:3配比。
6、大理石在鋪貼前應鏟除背后網格布,并補刷石材防護劑,晾干后進行鋪貼;若質地較為松脆的石材,則須在工廠對石材背面去網后做背膠或背砂處理,到場后直接鋪貼。
7、表面平整度:1mm;縫格平直:1mm;接縫高低:0.5mm;踢腳線上口平直:1mm;板塊間隙寬度:1mm。
施工圖片:



3
地面釉面瓷磚鋪貼施工工藝
節點大樣:

施工工序:
地面清理→瓷磚浸水濕潤→水泥砂漿結合層→安裝標準塊→鋪貼地面磚→勾縫→清潔→養護
重點說明:
1、鋪貼釉面陶瓷地面磚前,應先將陶瓷地面磚浸泡陰干(浸泡至不起氣泡即可取出陰干)。
2、同一空間飾面磚色澤應一致、套割邊緣應整齊,大面無小塊,開孔位置尺寸應正確,無裂痕和缺損;釉面瓷磚無掉角、爆邊,結合處無三角洞及方形洞。
3、墻面基層先處理平整,粘貼層厚度控制在7-10mm為宜,采用專用瓷磚粘貼劑粘貼牢固 (單塊空鼓小于 15%,且每自然間不超過總數的5%)。
4、地磚表面平整度誤差不得超過1mm(用2米靠尺和塞尺檢查);縫格平直誤差不得超過1.5mm(拉5米線和鋼尺檢查);接縫高低差誤差不得超過0.5mm(用直尺塞尺檢查);踢腳線上口平直誤差不得超過1mm(拉5米線和鋼尺檢查);板塊間隙寬度誤差不得超過1mm(用鋼尺和塞尺檢查)。
5、排磚應符合設計要求,當設計無要求時,應根據現場實際情況進行調整,避免出現板塊小于整磚1/3 邊長的邊角料。
施工圖片:

4
地面拋光磚鋪貼施工工藝
節點大樣:

施工工序:
處理基層→彈線→預排→攤鋪水泥砂漿→安裝標準塊→鋪貼地面磚→勾縫→清潔→養護
重點說明:
1、拋光磚鋪貼前須先進行預排,檢查紋路、核查方正度,避免鋪貼后的紋路錯亂、縫隙不均勻。
2、同一空間飾面磚色澤應一致、套割邊緣應整齊,大面無小塊,開孔位置尺寸應正確,無裂痕和缺損;墻磚無掉角、爆邊,結合處無三角洞及方形洞。
3、地面基層先處理平整,粘貼層厚度控制在7-10mm為宜,采用專用瓷磚粘貼劑粘貼牢固 (單塊空鼓小于 15%,且每自然間不超過總數的5%)。
4、地磚表面平整度誤差不得超過1mm(用2米靠尺和塞尺檢查);縫格平直誤差不得超過1.5mm(拉5米線和鋼尺檢查);接縫高低差誤差不得超過0.5mm(用直尺塞尺檢查);踢角線上口平直誤差不得超過1mm(拉5米線和鋼尺檢查);板塊間隙寬度誤差不得超過1mm(用鋼尺和塞尺檢查)。
5、 排磚應符合設計要求,當設計無要求時,應根據現場實際情況進行調整,避免出現板塊小于整磚1/3 邊長的邊角料。
施工圖片:

5
地毯鋪設施工工藝
節點大樣:

施工工序:
基層處理→地毯剪裁→ 釘倒刺板掛毯條→鋪設防潮墊→鋪設地毯→細部處理及清理
重點說明:
1、地毯加工前應明確材料含量(多少百分比羊毛,是否分色)、加工工藝(圈絨、割絨、阿克明斯)、絨高(羊毛高度)、膠墊容重( k/m2)。
2、鋪設地毯前地面須采用水泥砂漿找平處理(厚度根據地毯與膠墊確定落差)待水泥砂漿完全干透后,方可鋪設地毯。
3、地毯表面應平服,無起鼓翹邊,圖案拼花應細,絨面順光應一致。
4、地毯與大理石不得直接拼接,可采用過渡材料進行拼接收口(如:不銹鋼條、銅條等),收口處絨毛應高出5mm。
5、地毯鋪設完成后應立即采取成品保護措施。
6、地毯與踢腳線、墻邊、柱子收口處周圍應順直、應壓緊。
施工圖片:

6
實木地板鋪設施工工藝
節點大樣:
施工工序:
安裝地龍骨→撒防蛀粉→安裝防潮多層板→ 鋪貼防潮膜→鋪實木地板
重點說明:
1、地板安裝時要留伸縮縫,地板與墻壁之間要預留出10mm左右的地板伸縮縫。地板間縫隙不超過1mm,密度較高的地板鋪設時,每塊應留有0.4mm的間隙,以防日后起拱。實木地板之間要留伸縮縫,預留潮濕季節木地板膨脹空間,多層實木地板和強化復合地板則可以無縫拼接。
2、地板下須鋪設防潮膜,接口處互疊,用膠布粘貼防止灰塵水汽進入。
3、木擱柵應彈線;應按300~400mm距離打孔,預埋絲桿;木擱柵應按300~400mm開沉頭孔,應調整絲桿、調平龍骨基層;固定不得損壞預埋管線,木擱柵與墻縫隙30mm。
4、踢腳線表面應光滑,接縫應嚴密;踢腳線上口平齊3mm/5m、踢腳線與面層的接縫1mm。
5、板面縫隙寬度0.5mm/鋼尺、表面平整度2mm/2m、面板拼縫應平直3mm/5m、相鄰板材高度差1mm/鋼尺。
施工圖片:
7
衛生間地漏安裝工藝
節點大樣:
施工工序:
定位→排水管道安裝→預埋
重點說明:
1、樓板開孔須大于排水管徑40mm ,孔壁須進行鑿毛處理。須用專用模具支撐,澆搗須用水泥砂漿分兩次以上封堵澆搗密實。
2、地漏的排水管口標高應根據地漏型號確定,使排水管與地漏連接緊密。
3、地漏安裝時周邊的砂漿應填充密實。
4、地漏、排水管直徑須符合排水流量要求,排水管須設置存水彎。
5、地面找坡符合排水要求,找坡率3‰-5‰。
6、地漏的頂面標高應低于地面1mm,地漏水封深度應≥50mm。
施工圖片:

8
沐浴房地面石材施工工藝
節點大樣:

施工工序:
地面清理→水泥漿結合層→鋪貼石材 →養護→晶面處理
重點說明:
1、淋浴房地面鋪貼石材前須先作擋水檻,擋水檻完成面高度低于石材地面30mm, 擋水檻采用混凝土砂漿澆筑,擋水檻與地面接觸位置須作弧形翻邊。
2、 防水施工須先對檔水檻陰角處進行柔性防水處理,待檔水檻陰角防水干透后再進行大面防水施工。
3、 沐浴房門檻石材須采用濕鋪工藝進行鋪貼,預防淋浴用水落地后向外滲透。
施工圖片:

9
廚房、衛生間門檻石安裝工藝
節點大樣:

施工工序:
地面清理→水泥濕漿結合層→鋪貼門檻石→養護→晶面處理
重點說明:
1、 門檻石鋪貼前須先作擋水檻,擋水檻完成面高度低于石材地面30mm, 擋水檻采用細石水泥砂漿澆筑,擋水檻與地面接觸位置須作弧形翻邊。
2、 防水施工須對檔水檻陰角及擋水檻面做柔性防水處理。
3、 門檻石材須采用濕鋪工藝進行鋪貼,預防淋浴用水落地后向外滲透。
4、為避免門套受潮發霉,門套及門套線安裝在門檻石上,門套根部留2~3mm縫采用耐候膠(顏色與門套線同色或按設計要求)封閉。
5、 門檻石長度應大于門框凈寬50mm,居中鋪貼,門洞兩邊石材未覆蓋處用濕漿抹平(與門檻石同時施工完成);門檻石的寬度應與門套邊對齊——凸口(如插口式)門套線對齊內邊,平口(如與門套連體)門套線對齊外邊。
施工圖片:

二、墻柱面工程
1
輕鋼龍骨石膏板隔墻施工工藝
節點大樣:

施工工序:
隔墻放線定位→安裝天地龍骨→安裝豎向龍骨→安裝橫向龍骨→龍骨內敷設隱藏管線→門洞口、窗臺口加固→封一面石膏板→填充隔音棉→進行隱蔽驗收→再封加一面石膏板
重點說明:
1、常規豎龍骨為3000mm,如超過3000mm或小于3000mm建議采用定制型豎龍骨。
2、門洞口、窗口內側須預埋基層板材加固,并做好防腐、防霉、防火處理。
3、天地龍骨安裝前先把橡膠墊安裝在天地面線位上,再將天地龍骨放在橡膠墊上安裝。
4、未找平的地面封石膏板時下口 mm處應先安裝水泥纖維壓力板(防潮、防水),而后再封石膏板,封第二層石膏板時下口不應直接落地,應平地腳線上口高度安裝。
5、自攻螺絲應陷入板材表面0.5mm-1.0mm深度為宜,且面紙不應破裂暴露石膏。
6、石膏板與石膏板接口預留3-5mm縫隙為宜。
7、封紙面石膏板打螺絲前須進行彈線。
8、高度超過4m隔墻,應用100系列隔墻龍骨,或者按設計要求增加鋼架。
施工圖片:



2
衛生間鍍鋅方通隔墻施工工藝
節點大樣:

施工工序:
隔墻放線定位→焊接鋼架→焊口防銹處理→搗制混凝土地梁→封硅酸鈣板→掛網→水泥砂漿批蕩→涂刷防水涂料→鋪貼石材
重點說明:
1、方鋼骨架采用鍍鋅成品,焊接點涂刷防銹漆。
2、鍍鋅方通兩側每隔600mm鉆透氣孔。(避免電焊時高溫沒透氣孔造成鍍鋅方通變型)
3、鋼架焊接完成后在底部澆筑300mm高混凝土地梁,寬度根據設計要求。
4、內層封硅酸鈣板采用自鉆螺絲固定 ,然后進行掛網,掛網采用自然平整安裝法(即不要太平整,要有一定的起拱度)。
5、水泥砂漿批蕩,先在硅酸鈣板上刷一層加膠狀的素漿,然后再進行水泥砂漿批蕩,水泥砂漿批蕩層控制在距石材背面7-10mm。
6、水泥砂漿批蕩層干透后進行防水施工。
施工圖片:



3
石材灌漿施工工藝
節點大樣:

施工工序:
石材排板放線→預排石材→板材固定→灌槳→嵌縫
重點說明:
1、石材采用濕掛灌漿施工時,固定石材的鋼筋網應與預埋件連接牢固;每塊石材與鋼筋拉接點不得少于4個;拉接用銅絲具有防銹性能。
2、深色石材采用32.5MPa普通硅酸鹽水泥混合中砂或粗砂,(含泥量不大于3%)1:3配比。淺色系列石材采用32.5MPa白水泥砂漿摻白石屑1:3配比。
3、灌漿前應用填縫材料臨時封閉板縫,避免漏漿;灌漿時應分層進行,每層灌漿高度且不超過板高的1/3. 插搗密實,初凝后繼續灌注,灌漿距板材上口50mm處為止。
施工圖片:

4
墻面石材干掛施工工藝
節點大樣:

施工工序:
石材排板放線→安裝鋼骨架→石材安裝→打膠收口
重點說明:
1、 所有型鋼規格符合國家標準,熱鍍鋅處理,焊接部位采用防銹處理。不銹鋼石材連接掛件采用鋼號202以上、沿海地區采用鋼號304。
2、 2500mm高以內的墻體,豎向須采用5﹟鍍鋅角鋼,橫向采用40mm×40mm鍍鋅角鋼,間距根據石材的橫縫排版確定, 2500mm高以上的墻體,豎向須采用8﹟鍍鋅槽鋼,橫向采50mmx5mm型鍍鋅角鋼,間距根據石材的橫縫排版確定。
3、應按石材排版圖進行現場鋼架布置;掛件與鋼架連接應正確(反向、焊接)
4、干掛石材單塊面積一般不超過1.5 平方,室內干掛石材厚度應大于20 mm,室外干掛石材厚度應大于25mm;石材板面較大且薄的板材應在背面粘加固背條,防止翹曲變形;干掛石材墻面無透膠污染。
5、干掛石材孔、槽的數量、深度、位置、尺寸應符合設計要求;避免鉆孔或開槽加工時出現位置不正、數量不足、深度不夠或孔槽壁太薄等質量問題。
6、立面垂直度1mm/2m 垂直檢測尺;表面平整度1mm/2m 靠尺和塞尺;陰陽角方正1mm/直角檢測尺;接縫高低差0. 5 mm /鋼直尺和塞尺;接縫直線度1mm/拉5m線和鋼直尺,不足5m 拉通線;接縫寬度1mm鋼直尺。
施工圖片:

5
頂面石材干掛施工工藝
節點大樣:

施工工序:
石材排板放線→安裝鋼骨架→石材安裝→打膠收口
重點說明:
1、 所有型鋼規格符合國家標準,熱鍍鋅處理,焊接部位采用防銹處理。不銹鋼石材連接掛件采用鋼號202以上、沿海地區采用鋼號304。
2、應按石材排版圖進行現場鋼架布置;掛件與鋼架連接應正確(反向、焊接)
3、干掛石材單塊面積一般不超過1.5 平方,室內干掛石材厚度應大于20 mm,室外干掛石材厚度應大于25mm;石材板面較大且薄的板材應在背面粘加固背條,防止翹曲變形;干掛石材無透膠污染。
4、干掛石材孔、槽的數量、深度、位置、尺寸應符合設計要求;避免鉆孔或開槽加工時出現位置不正、數量不足、深度不夠或孔槽壁太薄等質量問題。
5、頂面石材背面周邊退進5mm,四周鏟網40mm寬,背不小于3#鍍鋅扁鐵,采用石材干掛AB膠粘貼,當石材邊長大于600mm時中間須增加扁鐵與周邊扁鐵連接成網狀。
6、頂面石材兩端連接采用干掛件掛扣(石材側面掛件位開槽),采用石材干掛AB膠粘結;石材邊長大于600mm時中段點再用石材干掛AB膠將掛件與扁鐵粘結;末端石材須擱置在墻面上,采用石材干掛AB膠粘結牢固;表面平整度1mm/2m靠尺和塞尺。
施工圖片:


6
吊頂玻璃/鏡子安裝施工工藝
節點大樣:

施工工序:
基層制作→放線→玻璃/鏡子加工→安裝玻璃/鏡子→打膠收邊→清理
重點說明:
1、基層采用多層板(背面做好三防處理)制作,須平整牢固,平整度允許誤差1mm,避免安裝不平整造成破損,安裝前基層必須清理干凈。
2、背面先貼好專用保護膜,周邊退進10mm黏貼3mm厚海綿貼(寬度視玻璃/鏡子尺寸而定),長邊相隔300mm條狀黏貼3mm厚海綿貼,起到定位校正作用。
3、玻璃/鏡子面無固定件安裝的采用結構膠粘接在基層板上,膠干前下撐支架固定,膠干牢固后拆除支架。
4、玻璃/鏡子安裝完成后進行保潔時嚴禁使用酸性洗滌劑或含研磨粉的去污粉清洗。
5、玻璃/鏡子采用中性耐候膠收口。
6、玻璃/鏡子面有設備安裝時,須測準開孔位置及尺寸,周邊為防止鏡子開裂,背面四周采用AB膠黏結。
施工圖片:


7
墻面瓷磚鋪貼施工工藝
節點大樣:

施工工序:
處理基層→彈線→瓷磚浸水濕潤→攤鋪水泥砂漿→安裝標準塊→鋪貼地面磚→勾縫→清潔→養護
重點說明:
1、鋪貼瓷磚前須先檢查原墻體是否存在空鼓現象。
2、鋪貼釉面陶瓷地面磚前,應先將陶瓷地面磚浸泡陰干。(浸泡至不起氣泡即可取出陰干)
3、同一空間飾面磚色澤應一致、套割邊緣應整齊,大面無小塊,開孔位置尺寸應正確,無裂痕和缺損;墻磚無掉角、爆邊,結合處無三角洞及方形洞。
4、粘貼應牢固 (單塊空鼓小于 15%,且每自然間不超過總數的5%)
5、排磚應符合設計要求,當設計無要求時,應根據現場實際情況進行調整,避免出現板塊小于整磚1/3 邊長的邊角料。
6、立面垂直度1mm/2m 垂直檢測尺;表面平整度2mm/2m靠尺和塞尺;陰陽角方正2mm/直角檢測尺;接縫高低差0.5mm/鋼直尺和塞尺;接縫直線度1mm/拉5m 線和鋼直尺,不足5m 拉通線;接縫寬度1mm/鋼直尺。
施工圖片:

三、吊頂工程
1
輕鋼龍骨石膏板吊頂施工工藝
節點大樣:

施工工序:
彈出天花完成面線→吊桿安裝→安裝主龍骨→安裝沿邊龍骨→安裝次龍骨→龍骨調平→進行隱蔽驗收→安裝石膏板
重點說明:
1、封板前天花內所有管線、消防設備等必須測試驗收合格,石膏板才能進行安裝,避免封板后出現線路不通、消防管道漏水等問題,造成成本增加。
2、各類石膏板天花吊頂長度超過15m 的應預留伸縮縫,且伸縮縫兩邊應設置獨立的主副龍骨。
3、封紙面石膏板打螺絲前須進行彈線。(石膏板拼接口須預留3-5mm縫隙)
4、自攻螺絲安裝應陷入板材表面0.5mm-1.0mm深度為宜,且不可切斷紙面暴露石膏。
5、天花吊桿超過1.5m時須增加反支撐,主龍骨按房間短跨長度起拱3 ‰~5‰ 。
6、安裝輕型吊燈的部位應預設400*400*18mm多層板,板面與龍骨面齊平,多層板采用8mm吊桿固定在樓板底及龍骨上,連接牢固。
7、安裝重型吊燈時,在未封板前預埋掛鉤/掛鏈(根據燈具重量確定掛鉤/掛鏈承載力)。
8、在安裝主副龍骨前應考慮燈孔、噴淋、風口、檢修口等位置,避免安裝設備時破壞主副龍骨。
施工圖片:


2
金屬板吊頂施工工藝
節點大樣:

施工工序:
彈線→安裝沿邊龍骨→安裝吊掛桿件→安裝次龍骨→安裝罩面板→安裝壓條
重點說明:
1、在檢修口周圍應設附加龍骨,附加龍骨采用鉚釘固定。
2、罩面板安裝前天花內所有管線、消防設備等必須測試驗收合格,罩面板才能進行安裝。
3、安裝輕型吊燈的部位應預設400*400*18mm多層板,板面與龍骨面齊平,多層板采用8mm吊桿固定在樓板底及龍骨上,連接牢固。
4、安裝重型吊燈時,在罩面板安裝前預埋掛鉤/掛鏈(根據燈具重量確定掛鉤/掛鏈承載力)。
5、天花吊桿超過1.5m時須增加反支撐,主龍骨按房間短跨長度起拱3 ‰~5‰ 。
6、板面無明顯變形,弧形板曲面應柔順,板面應潔凈。
7、邊龍骨與板面及墻面接口應嚴密。
施工圖片:

3
陰角槽施工工藝
節點大樣:

重點說明:
1、石膏板陰角槽:采用高密度中纖板,濕度較大地區可采用密度高的木質材料,按設計規格要求定制加工,安裝前須做防潮處理。
2、木制品陰角槽:按設計規格要求在木制品廠定制加工。
3、石材陰角槽:按設計規格要求在石材廠定制加工。
4、其它陰角槽:若陰角處兩面材質不同,在容易加工的材質上開槽。
施工圖片:

4
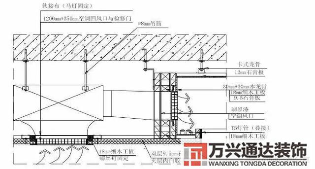
空調風口安裝工藝
節點大樣:

重點說明:
1、空調回風口、出風口、換氣扇等處要求設置木邊框,便于風口及設施安裝以及防止冷凝水。
2、空調出回風百葉的尺寸須根據機電安裝單位風里計算
施工圖片:

免責聲明:文章部分文字、圖片來源于網絡,如有侵權,請聯系刪除。
。推薦閱讀: